欢迎访问湖北峰腾环卫科技有限公司网站!
销售经理:许经理销售热线1:183 7187 8887(微信同号)
地 址:湖北省随州市北郊星光工业园
尊敬的用户您好:
感谢您阅览本公司产品,由于大型分体式垃圾站属于大型垃圾转运中心,涉及到垃圾房土地建设和预埋件定位,所以你们如果需要了解该类设备,请你们能联系我们销售人员具体对接,根据实际设计院规划图纸或者我方提供图纸来建设,避免订购设备不能使用安装!我公司绝对保证提供每一套设备有质保,能满足实际使用配套!
一、产品外观
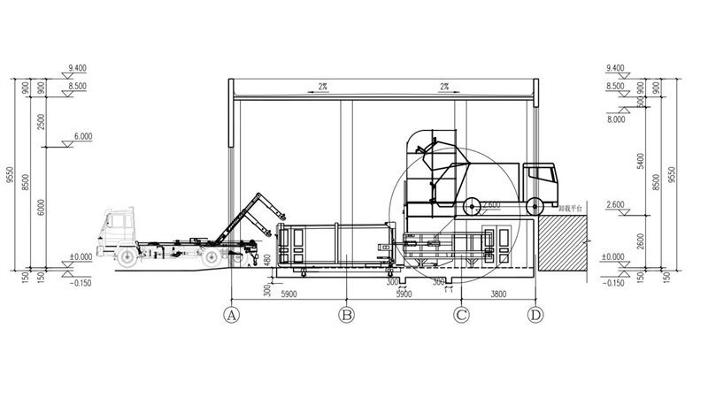
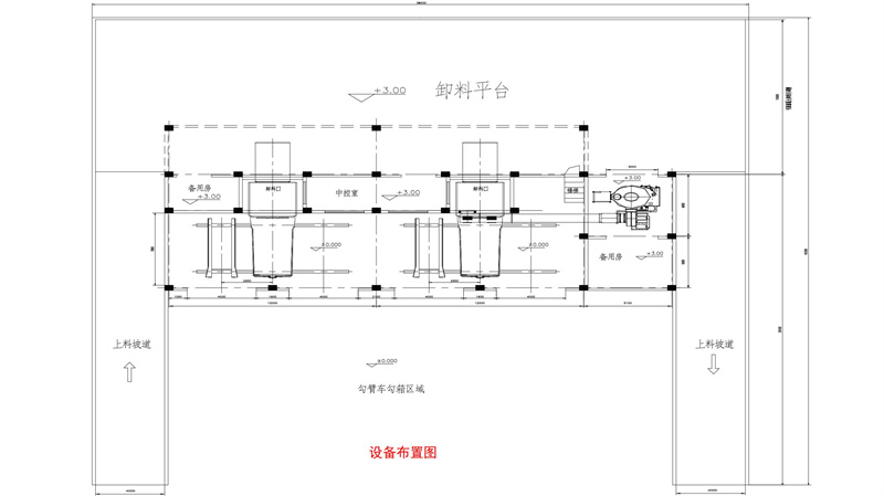
二、客户案例图纸
三、控制系统
四、喷淋除臭系统
六、负压抽风系统
七、配套车辆
感谢您的阅览!详细对接请联系我方销售吧!
销售经理:许经理销售热线:183 7187 8887销售经理:销售热线:地 址:湖北省随州市北郊星光工业园